产品中心
PRODUCT CENTER
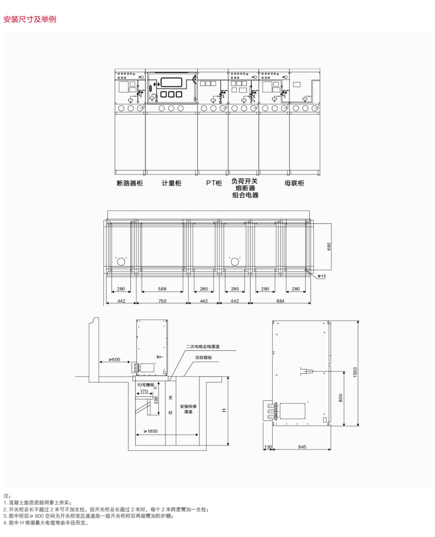
XGN-12智能固体绝缘柜
XGN-12是本公司的新一代固体绝缘环网柜,适合智能电网应用。该系统具有高水平的运行安全性,广泛应用于12kV二次配电系统。XGN-12环网柜基于本公司成熟的真空灭弧室进行设计,无需维护,10.000次操作寿命获得认证。柜内所有高压带电部件均采用单相绝缘。所用材料经过特别打造,提供极佳的绝缘性能及优异的散热特性。此外,经过特殊设计的绝缘结构,有效的优化了周围电场分布,因此最大限度地降低了内部燃弧的任何风险。
- 产品信息





